Sweet homeRéhabilitation appartement à Saint Malo
Le projet
En quelques mots
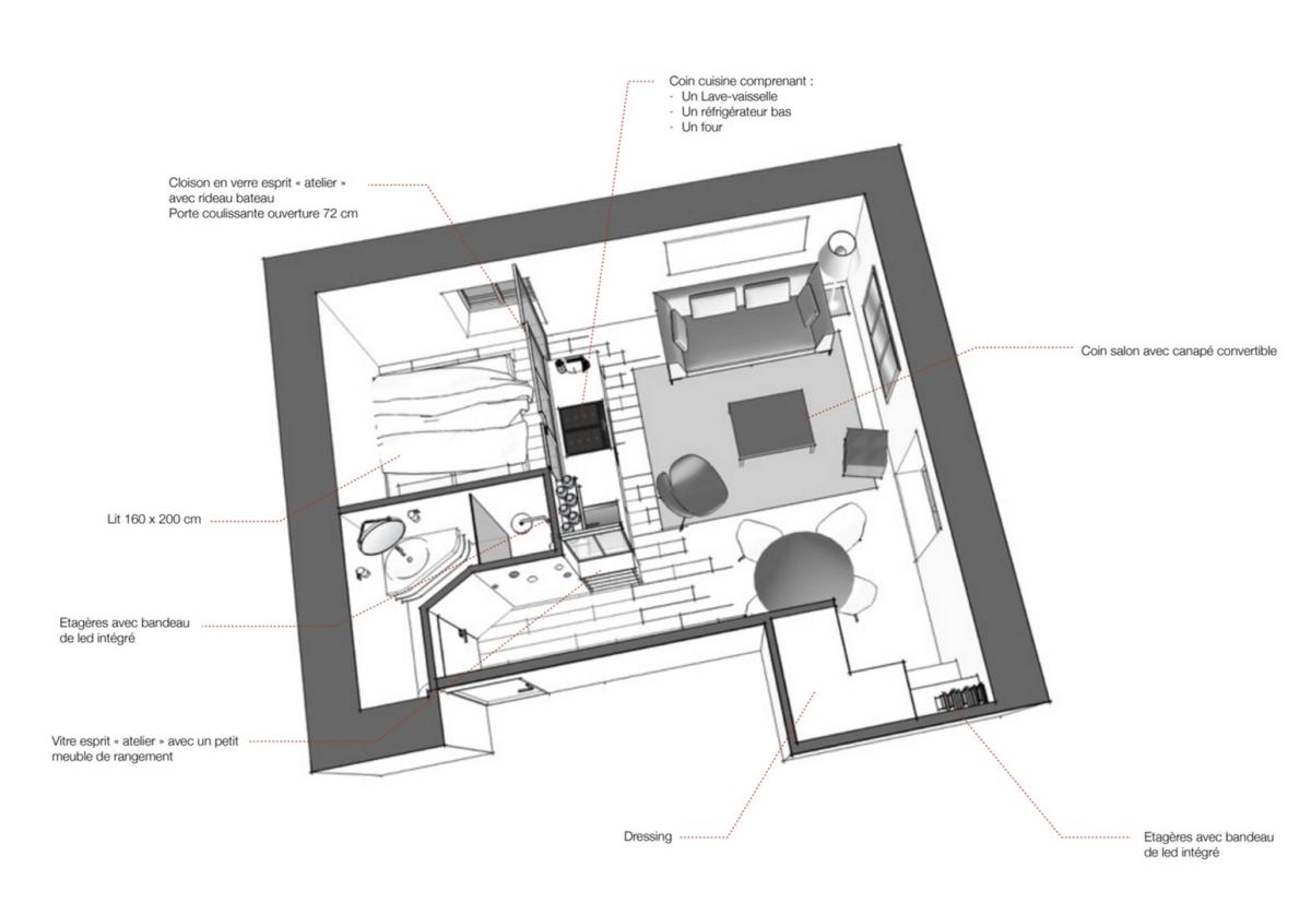
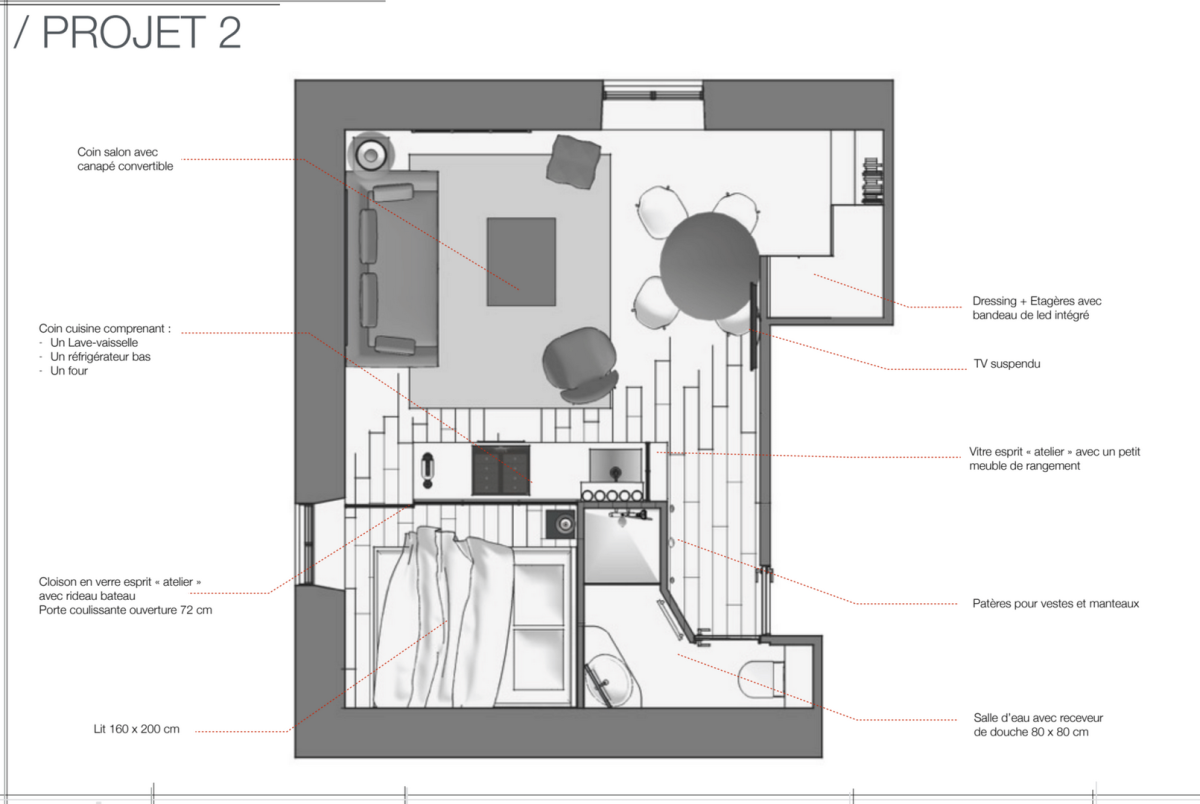
Belle réhabilitation d'un petit appartement de 30 m²
Nous avons eu le plaisir de travailler sur la réhabilitation totale d’un petit appartement situé à Saint-Malo. L’appartement de 30 m2 était resté dans son jus depuis les années 50. Sans salle de bains, ni toilettes, ni cuisine et aucun rangement. Il n’y avait qu’un point d’eau avec deux petites pièces encombré d’une multitude d’objets sans intérêt. Sobre, poussiéreux et bas de plafond, la tâche s’annonçait rude.
Optimiser les espaces
La cliente souhaitait avoir un espace de vie, une cuisine, une salle à manger, une chambre, un WC, une salle d’eau et des rangements. La première mission était donc celle d’étudier et d’optimiser les espaces aux centimètres près. Il a fallu trouver des astuces afin que la circulation soit fluide, des espaces confortables et bien évidemment fonctionnels.


Donner une sensation de grandeur
Il est important dans les petits espaces d’optimiser chaque centimètre en travaillant sur les volumes, la circulation, les rangements astucieux, etc. Et afin de donner une impression d’espace, la lumière naturelle et artificielle est la clé de la réussite. Tout comme le choix des coloris sur les murs, sols et plafonds. Dans ce projet, nous avons privilégié les teintes claires et avons travaillé sur des éclairages directs et indirects. Une verrière entre la chambre et le salon permet l’apport de la lumière naturelle et visuellement donne de la profondeur aux espaces.
Pour augmenter la hauteur sous plafond, nous avons déposé le faux plafond sous les poutres et l’avons remplacé par un faux plafond entre les poutres. Même si cela représente un peu plus de travail, ceci permet non seulement de gagner quelques centimètres précieux, mais aussi de donner du caractère à l’ensemble.
Des travaux avec de belles surprises !!!
Lors de la dépose, nous avons découvert un magnifique mur en pierre que j’ai absolument souhaité garder et mettre en valeur avec des joints à la chaux. Puis, nous avons découvert un enfoncement dans un des murs que nous avons transformés en petite bibliothèque. L’éclairage indirect sous les étagères apportées de la profondeur et met à la fois en valeur les objets et photos. Nous avons également réussi à restaurer le parquet qui initialement était recouvert d’un lino collé. Que de belles surprises pour ce petit appartement plein de charme !
DÉCOUVREZ
nos autres projets

